新築ウッドデッキ
2005.4〜6作成
昨年(2004)の6月に家を新築しました。家の設計段階からウッドデッキを作る予定でいましたが、仕事の都合でなかなか時間がとれず今日に至った訳で
す。ネットを見ていますと多くのDIYerがそれぞれの家に合った個性的なウッドデッキを自作をしています。ウッドデッキを作ることに関してはそれほど不
安はありませんでした。山田工作室らしいアイディア溢れる作品を、家族や友人達にもよろこばれるものを、と気合を入れて臨みました。
ウッドデッキは屋外でいながら部屋の続き、家と庭との中間的な位置で憩いのスペースになります。第二のリビングと言えるでしょう。夏は焼肉なんか大勢で
出来たらよいなと思っています。
<設計>
材料の選択
最近はハードウッドの材木が通販で手に入りやすくなりました。値段は高いけど耐
久性が
高く、シロアリ等の虫にも強いため、防腐剤の塗布は必要ないなどのメリットがあり、ノーメンテナンスで長持ちのウリンを採用しました。堅い木なのでコース
スレッド打ちには下穴が必要で手間はかかりますが、頑張れば出来るので根気よく頑張りました。
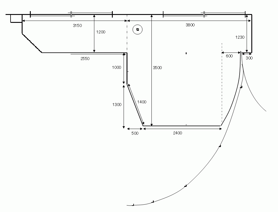
設計図
全体の設計時のサイズは図の通りです。真四角ではなく、右側にある玄関のアプローチに沿った形となりました。左側も庭の木と座敷の庭への通路の関係で斜
め
のラインとなっています。
リビングルームの前のスペースと、左の座敷の濡縁を兼ね庭を眺められるスペースで成り立っています。庭を有効に使い広いスペースを確保出来
ました。当初これ
には両親が「もっと小さなものでよい」と反対してましたが、地縄を張りイメージを伝え、ウッドデッキ関連の書籍等を見せるなどして「これくらいでもいいの
かな」と思わせる
様に時間をかけて説得しました。
設計図作成はフリーのCADソフト等を少しは試してみましたが、マスターするのに手間がかかりそうだったので、諦めてexcelで作成しました。正確な
図面で
なくても大体の寸法が分かればよいのです。作っていきながら考えていったところも多くあります。まぁ臨機応変ってことです。(無計画&行き当たりばった
り)
点検口兼収納庫として2箇所蓋で開け閉め出来るようにしています。
道路からの視界を遮りプライベートな空間にするため、高さ900の柱に対してクロスフェンスで囲うつもりでしたが、常設のベンチにして背もたれも作りまし
た。6人掛けくらい。視界を遮ることは必要ですがやり過ぎても開放感がなくなるので難いところですが、ちょうどいい感じになりました。船舶ライトもひとつ
アクセントになっています。スイッチはベンチ下に防雨タイプのもの。
座敷の庭(一応昔からの日本庭園(風?))の側は庭を眺めて楽しむ意味もあい低めのフェンスにしています。
左が玄関側のステップです。右は座敷の庭側です。どちらも床板を張ってから作ったので手間がかかりました。本来は床板を張る前に作るべきでした。計画が弱
かったと反省しています。
デッキ下はネコの進入防止のために板を張っています。これも床板を張る前にやるべきでした。(もぐりこんでの作業は大変でした)
おしゃれなアンティーク車輪をつけて、あと"WOODY SQUARE"の文字もジグソーを使い刻みました。
ベンチの下に花のプランター置いても中からも外からも見えてよさそうです。
総予算:約36万
総稼働:22人日(一日8時間計算)(設計、資材調達、あーしよーかこーしよーかと悩む時間は含めず)
休日はもちろん平日も照明をつけての夜間作業で頑張りました。
材料工具等購入先
りーべ (通販)、
フジオカ、西岡建材、
西村
JOY朝生田店、
DIK伊予店
ウリンはとても重くて堅い木です。注文した材木の総重量が1.1tもありました。木を扱うのも一苦労。
そして下穴開けるのにウッドデッキ用の下穴錐(3.5mm)を使いましたが3本も折ってしまいました。基礎部分のどこかに埋没しています。
コーススレッドも打ちこんでいる時に何本か折りました。
色は濃い茶色で落ち着いた感じがします。家族や友人にも評判よいです。
若干材木が余っているのでベンチくらいは作れそうです。テーブルはレッドシダー等の軽い木を使い、「焼肉が出来る仕様」で作ろうと考えています。
今回のウッドデッキはまずまず満足のいく作品が出来ました。反省すべき点は多々ありますが経験を積んだことにより身についているものと思います。永く大事
に使っていこうと思います。